Huerta Nueva (Málaga), España

Phorma

La propuesta para las 32 viviendas en Huerta Nueva se formula desde la lógica de la integración y la claridad urbana.

Proyecto

Phorma

Ubicación

Calle José Díaz Oliva, Sector SUP-T.8 "Huerta Nueva", Málaga

Cliente

Nuovit Homes

Año

2021

Estado

Contruido

Programa

Residencial

Colaboradores

Ingenierías: Duarte y Asociados para estructuras y JG INGENIEROS SA para instalaciones e instalaciones

Una arquitectura sobria que ordena la manzana y se abre al parque.

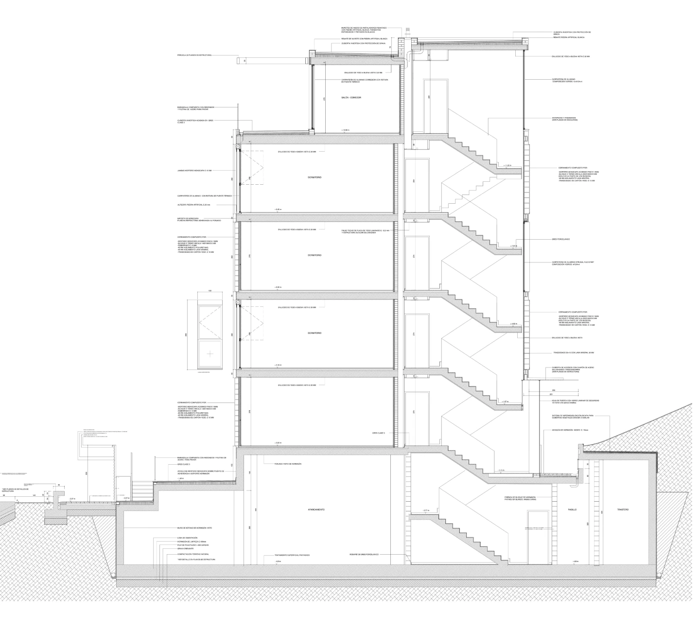
El edificio de Huerta Nueva no busca imponerse, sino construir ciudad desde la sobriedad. Una pieza compacta y clara que cierra la manzana con precisión, abriéndose en su interior para conectar calle y parque a través de un vacío que ordena, estructura y da respiración al conjunto.

Con poco, lo justo: el mortero y la modulación como lenguaje esencial.

Las viviendas se organizan en doble crujía, con estancias pasantes y terrazas cubiertas que actúan como umbrales habitables entre interior y paisaje. La arquitectura se adapta al clima y al lugar, ofreciendo espacios generosos, ventilación cruzada y una relación franca con el entorno.

La fachada, resuelta en mortero pintado, encuentra en el llagueado su lenguaje: una modulación medida que ordena sin recargar. En un contexto de contención presupuestaria, el proyecto demuestra que la economía no está reñida con la dignidad, la claridad ni la calidad arquitectónica

El vacío central no resta, estructura.

bakpak
Resumen de privacidad

Esta web utiliza cookies para que podamos ofrecerte la mejor experiencia de usuario posible. La información de las cookies se almacena en tu navegador y realiza funciones tales como reconocerte cuando vuelves a nuestra web o ayudar a nuestro equipo a comprender qué secciones de la web encuentras más interesantes y útiles.