Málaga, España

Next

Hormigón visto y terrazas 
en diálogo con la luz

Proyecto

Next

Ubicación

Calle Condes de Guadalhorce nº 34, Málaga (España)

Cliente

Nuovit Homes

Año

2022

Estado

En construcción

Programa

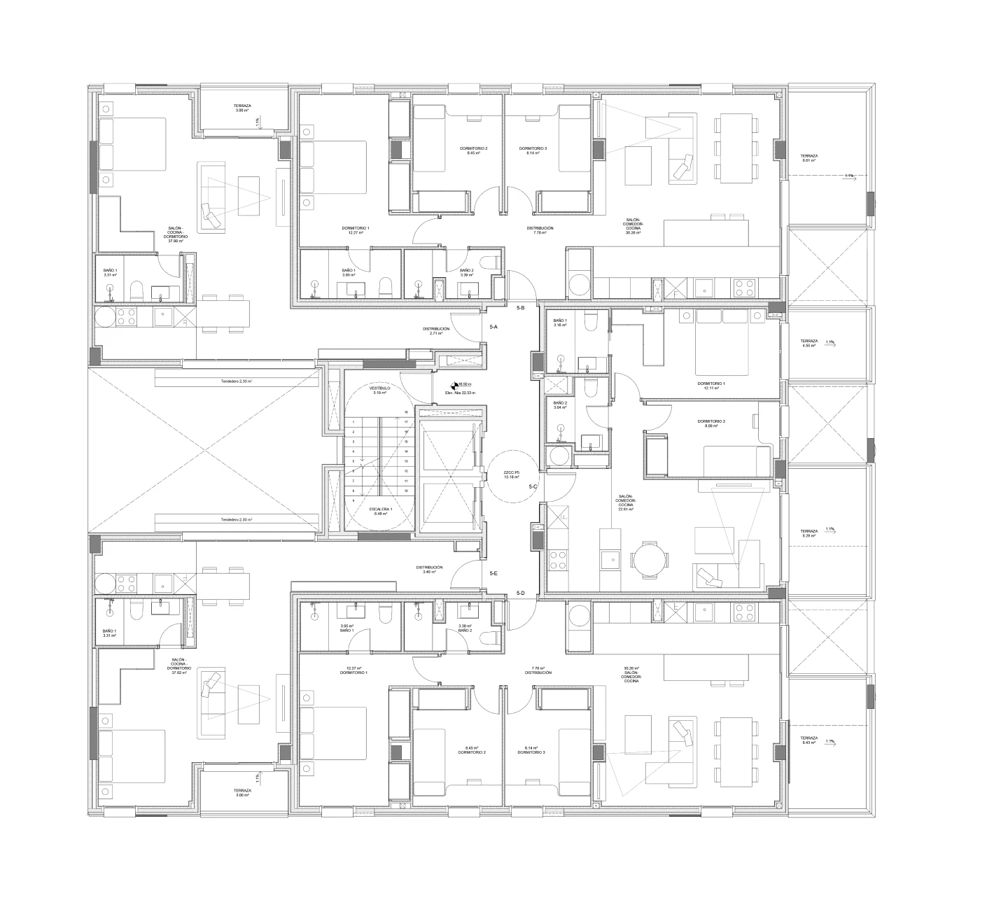
Residencial (34 unidades), y Aparcamiento

Colaboradores

Ingenierías:

Instalaciones - Arpe Instalaciones

Estructuras - Jesús Hernández

La fachada no se dibuja: se talla entre
estructura y sombra.

El edificio se construye desde una retícula de hormigón que actúa como estructura y como fachada. Un marco rotundo que ordena, tamiza y da carácter al volumen, generando una lectura clara, precisa y atemporal. La arquitectura no se impone desde el gesto, sino desde la repetición medida y el rigor constructivo.

El edificio remata la manzana en su extremo sur, enfrentándose al espacio público abierto con una fachada serena y estructurada que dignifica el borde urbano y completa la secuencia edificada.

En el interior de esa trama, las terrazas se desplazan sutilmente de planta en planta. El contrapeo vertical introduce una vibración compositiva que anima la fachada sin romper su orden. Las terrazas aparecen enmascaradas, como vacíos cuidadosamente tallados: estancias abiertas que prolongan la vida doméstica más allá del plano interior.

El conjunto encuentra equilibrio entre fuerza estructural y ligereza visual. La luz, las sombras y la vegetación introducen una lectura cambiante que activa el proyecto con el paso del día. No hay retórica: solo una arquitectura que se afirma desde el control, el detalle y la elegancia del vacío.

bakpak
Resumen de privacidad

Esta web utiliza cookies para que podamos ofrecerte la mejor experiencia de usuario posible. La información de las cookies se almacena en tu navegador y realiza funciones tales como reconocerte cuando vuelves a nuestra web o ayudar a nuestro equipo a comprender qué secciones de la web encuentras más interesantes y útiles.