Miraflores no es el barrio más antiguo de Lima, pero sí uno de sus núcleos más activos y representativos. Centro cultural y social de la capital, concentra algunos de los enclaves más exclusivos para la implantación de empresas, comercio y vivienda de alto nivel. En este contexto, el proyecto se plantea como un nuevo hito urbano, capaz de aunar estos valores y convertirse en un nuevo atractor para el distrito y la ciudad.
La parcela se sitúa en la esquina de la avenida José Pardo con la calle Atahualpa, en una ubicación privilegiada del distrito, muy próxima al parque Kennedy: un punto neurálgico de encuentros y actividad urbana.
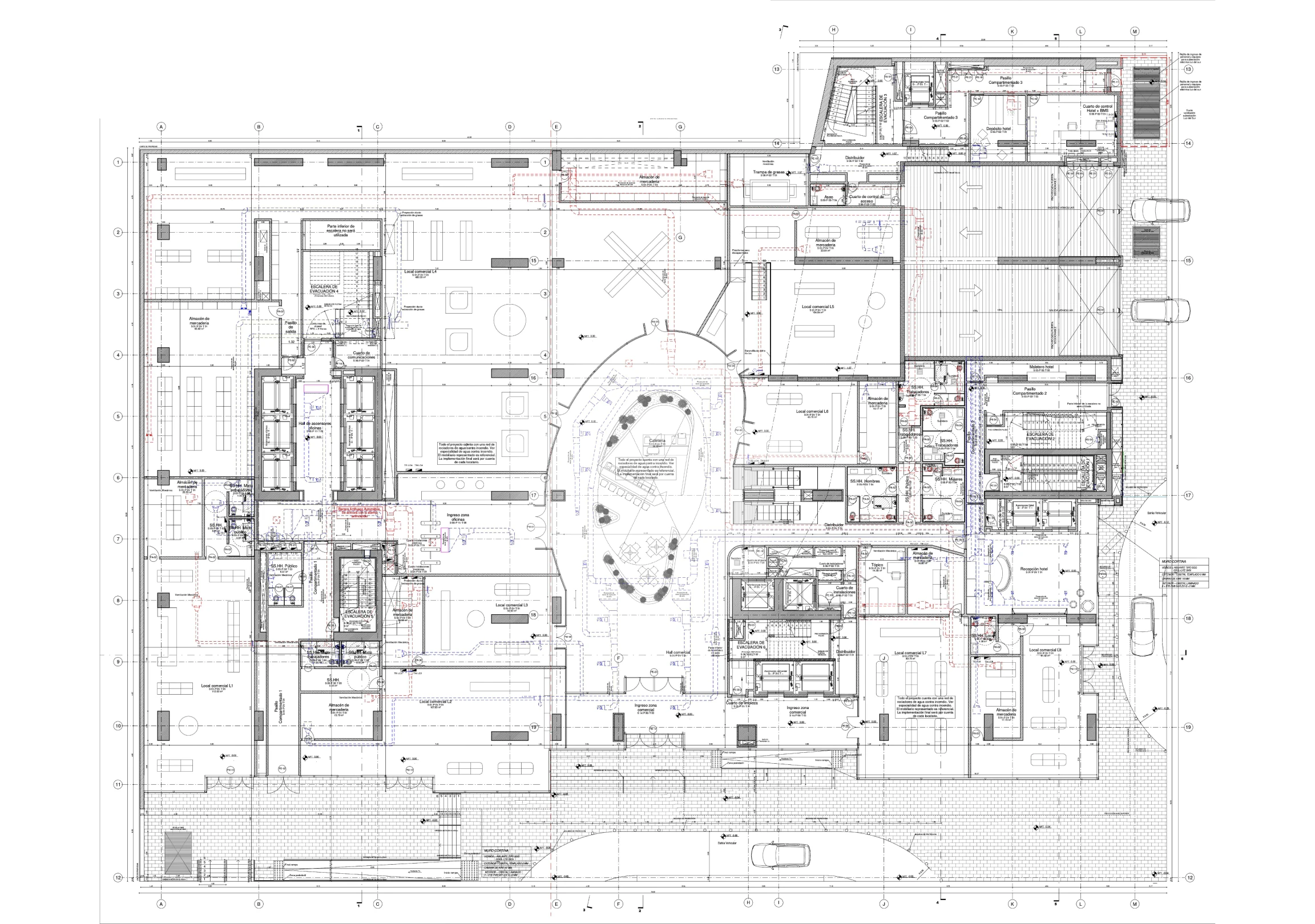
El programa se organiza en torno a tres grandes piezas: un hotel de 4 estrellas superior con 267 habitaciones, un centro comercial y un edificio de oficinas. Esta distribución se estructura a través de una estrategia volumétrica clara y expresiva: una gran base comercial en planta baja y niveles inferiores, sobre la que emergen dos volúmenes independientes que acogen el hotel y las oficinas.
El edificio, con una altura de 60 metros, presenta una volumetría esculpida que se abre hacia la ciudad, favoreciendo la ventilación e iluminación natural de sus espacios. A partir de la planta 9, el volumen se fragmenta en dos torres que ascienden en paralelo. Este gesto no solo aporta dinamismo al conjunto, sino que permite dotar de identidad propia a cada uno de los usos: dos piezas arquitectónicas autónomas y complementarias que funcionan como referentes urbanos. Mejor dos iconos que uno.