Pedregalejo (Málaga), España

Unique Casas Patio

Una reinterpretación actual de la casa-patio mediterránea

Proyecto

Unique Casas Patio

Autores

Bakpak

Ubicación

C/ Molino Hundido con C/ Señora. (Málaga), España

Cliente

Nuovit Homes

Año

2021-2024

Estado

En construcción

Programa

Residencial

Superficie

1.250 m2 sobre rasante, 1.250 m2 bajo rasante

Diferentes tecnologías en madera altamente complejas vertebran el proyecto

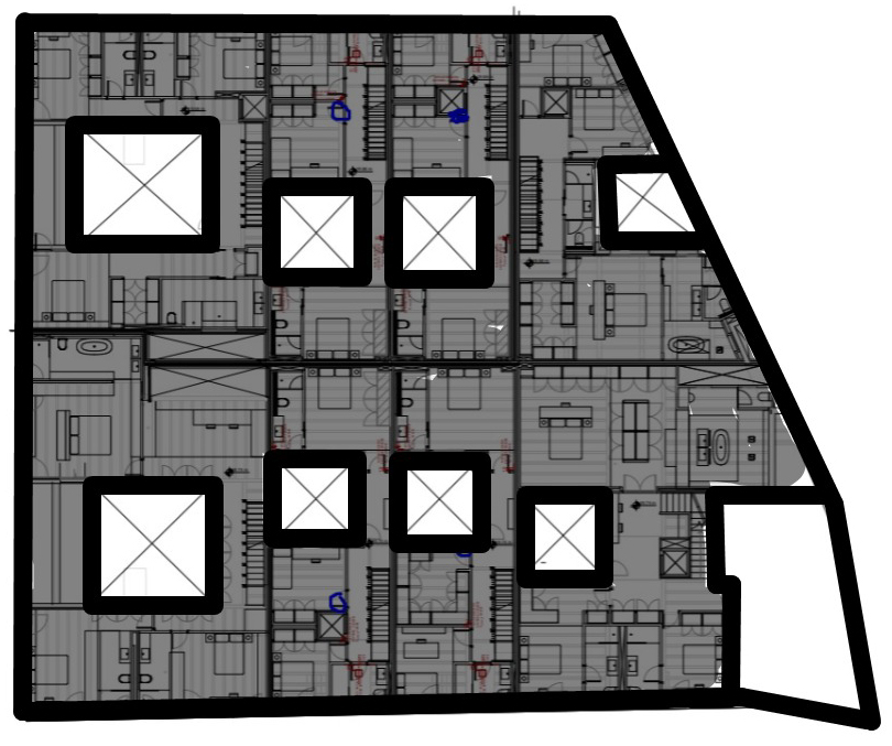
Una vivienda que se pliega hacia si misma en torno a un patio central.

Espacios interiores que se abren al patio mediante carpinterías plegables.

Cada vivienda se vuelca hacia su interior mediante un patio central cubierto por una claraboya, que se convierte en un espacio de uso y disfrute durante gran parte del año. Esta configuración garantiza iluminación natural, ventilación cruzada y privacidad, mientras que las estancias principales —salón y cocina-comedor— se abren completamente a este vacío mediante carpinterías plegables, diluyendo el límite entre interior y exterior.

Arquitectura sobria, atemporal y cuidadosamente integrada en su entorno.

El patio privado como espacio habitable es el corazón doméstico.

El proyecto combina una implantación urbana precisa, una arquitectura sobria y atemporal y una cuidada estrategia ambiental. La fachada fragmentada reconoce la escala doméstica del barrio, mientras que el control solar, las pérgolas y los elementos de sombra se integran con una envolvente de tonos claros y textura vertical. Diseñado para alcanzar la calificación energética A, el conjunto logra viviendas altamente eficientes, con un consumo energético hasta un 50 % inferior a la media y una reducción significativa de emisiones de CO₂.

bakpak
Resumen de privacidad

Esta web utiliza cookies para que podamos ofrecerte la mejor experiencia de usuario posible. La información de las cookies se almacena en tu navegador y realiza funciones tales como reconocerte cuando vuelves a nuestra web o ayudar a nuestro equipo a comprender qué secciones de la web encuentras más interesantes y útiles.