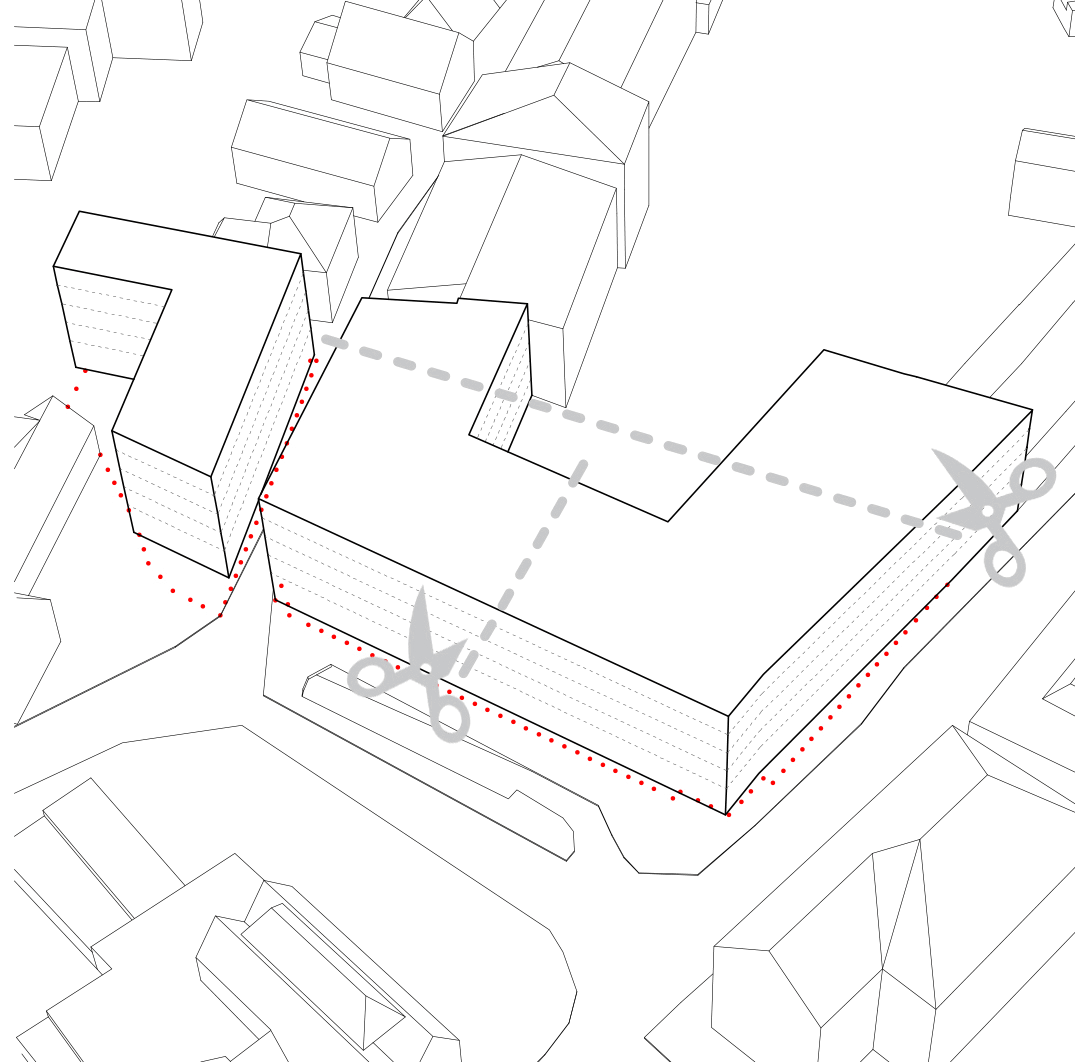
Volumetría fragmentada con identidad propia

Proyecto

Deggendorf

Autores

Bakpak + ALN

Año

2023

Estado

2º Premio en concurso

Programa

Hotel-Apartamento / Comercial / Aparcamiento

La propuesta apuesta por un lenguaje contemporáneo que interpreta la tradición local a través de fachadas quebradas.

Las fachadas, tratadas con variaciones de color y textura, contribuyen a diversificar la imagen del conjunto.

La propuesta apuesta por un lenguaje contemporáneo que interpreta la tradición local a través de cubiertas quebradas, aperturas moduladas y el uso de materiales de carácter sobrio.

bakpak
Resumen de privacidad

Esta web utiliza cookies para que podamos ofrecerte la mejor experiencia de usuario posible. La información de las cookies se almacena en tu navegador y realiza funciones tales como reconocerte cuando vuelves a nuestra web o ayudar a nuestro equipo a comprender qué secciones de la web encuentras más interesantes y útiles.