Berlín (Alemania)

Ampliación Museo Bauhaus

Un diálogo directo con el edificio original de Walter Gropius

Proyecto

Ampliación Museo Bauhaus

Autores

Guillermo Vázquez Consuegra + Bakpak

Ubicación

Berlín, España

Cliente

Gerencia de Urbanismo de Berlín

Estado

Concurso

Programa

Museo

Superficie

8.260 m2

Colaboradores

Ingenierías: BAC Ingenieros

Colaboradores: Christophe Beraldin, Alberto Brunello, Ellen Mekiffer, Anna Didi, Cosimo Marchiori, Andrea Sforzin.

Una ampliación que transforma el paisaje urbano sin renunciar al valor del patrimonio existente.

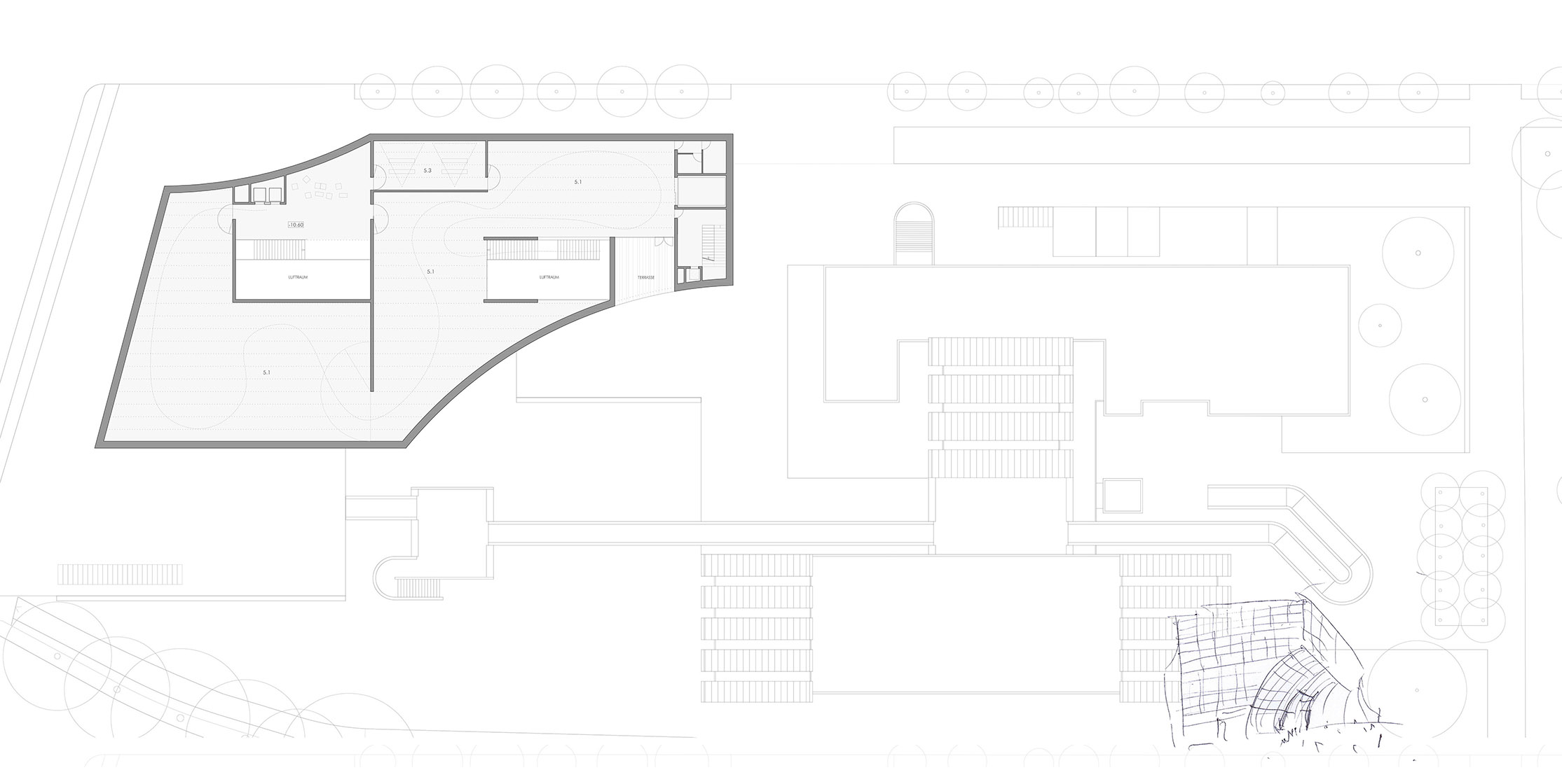
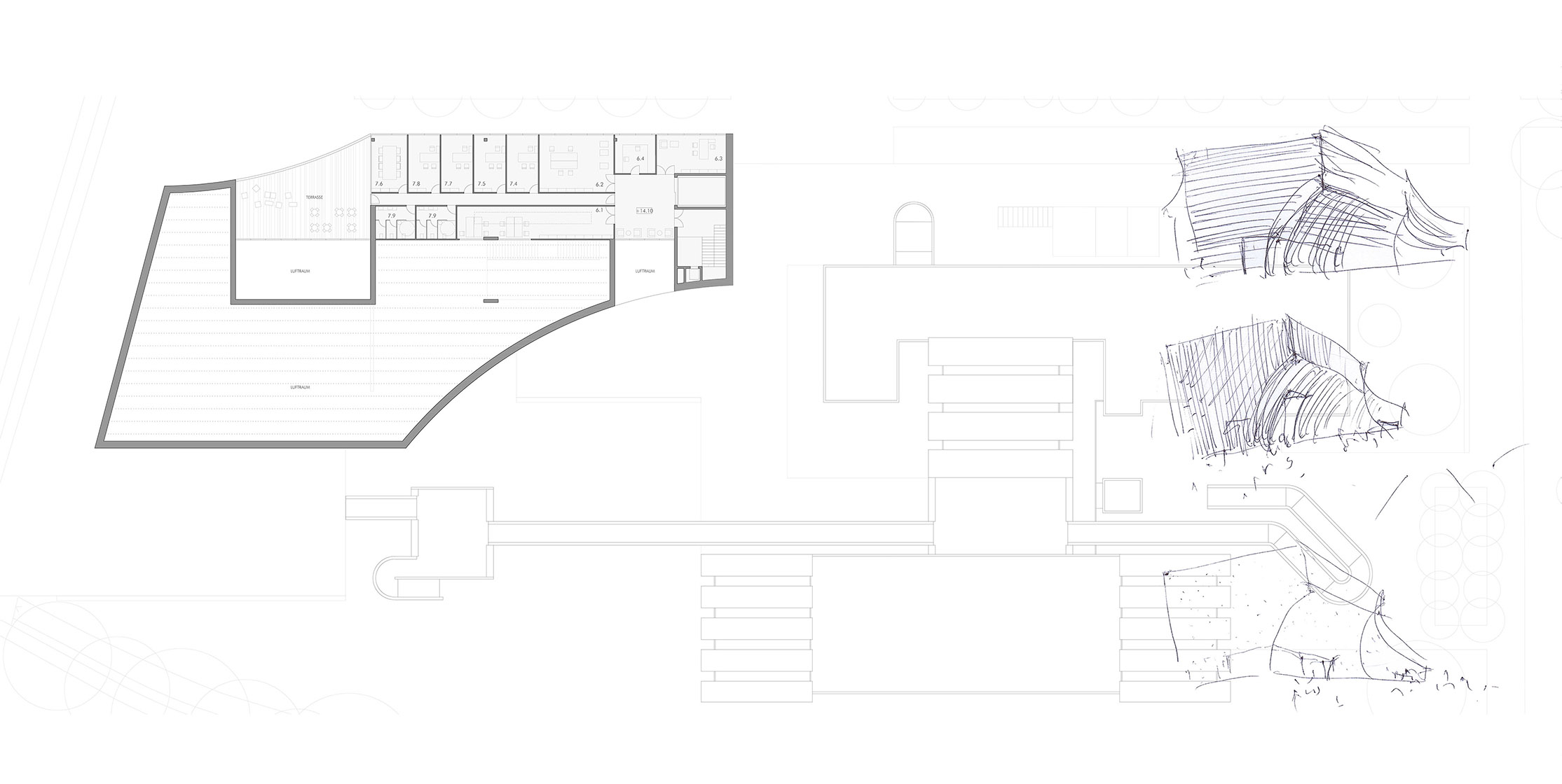
La propuesta establece un diálogo directo con el edificio original de Walter Gropius mediante dos operaciones geométricas que esculpen el volumen del nuevo museo. Una curva cóncava, derivada de los techos en diente de sierra del Bauhaus Archiv, configura tanto la sección del nuevo edificio como la geometría de su acceso principal, orientado hacia la plaza pública.

Una curva cóncava esculpe el acceso principal y caracteriza la sección del nuevo edificio.

El nuevo museo se concibe como un volumen capaz de expandir sus condiciones espaciales hacia el exterior. Los interiores se organizan con gran versatilidad, adaptándose a múltiples usos y programaciones, mientras que los recortes y aperturas del volumen aseguran una inserción natural, calmada y equilibrada dentro del tejido urbano circundante.

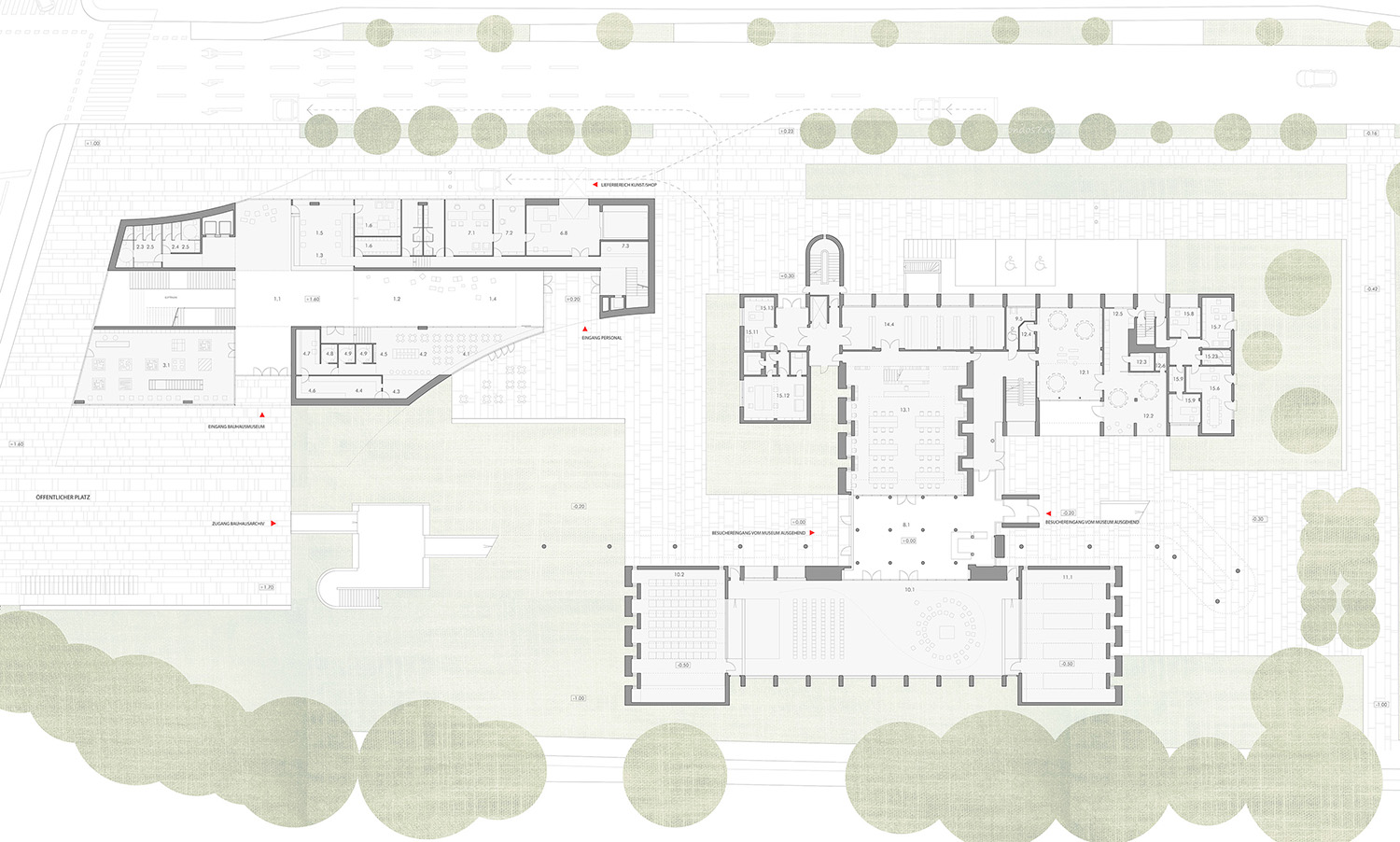
Un corte estratégico en el volumen reduce el impacto visual y crea una plaza pública central.

La nueva plaza central funciona como espacio de mediación entre el edificio histórico y la ampliación.

La ampliación del Museo Bauhaus en Berlín plantea una arquitectura profundamente vinculada a la dimensión urbana. El proyecto transforma el paisaje público, redefine las relaciones entre edificio y ciudad y abre nuevas posibilidades para el espacio compartido, respetando al mismo tiempo el valor patrimonial del conjunto existente.

bakpak
Resumen de privacidad

Esta web utiliza cookies para que podamos ofrecerte la mejor experiencia de usuario posible. La información de las cookies se almacena en tu navegador y realiza funciones tales como reconocerte cuando vuelves a nuestra web o ayudar a nuestro equipo a comprender qué secciones de la web encuentras más interesantes y útiles.